concrétise vos projets depuis plus de 40 ans

Desserte routière - Accès - Parkings

Pour les projets dont la desserte a une incidence significative sur les infrastructures routières proches, et toujours dans le cadre de la maîtrise globale du projet nous réalisons :

- les cahiers des charges à communiquer aux prestataires en charge des comptages de trafic sur les voies existantes

- les études de flux additionnels en fonction des données du projet et de statistiques pour des projets récents comparables

- les études de choix et de dimensionnement des ouvrages d'accès en fonction des doctrines officielles en cours.

Il peut s'agir de TOURNE A GAUCHE, CARREFOURS A FEUX, CARREFOURS GIRATOIRES, PASSAGES SOUTERRAINS ou AÉRIENS.

Nous sommes équipés en particulier du logiciel GIRABASE pour le dimensionnement des carrefours giratoires ou la vérification d'ouvrages existants et DIAGFEUX permettant d'étudier le carrefour à feux optimal pour une situation donnée.

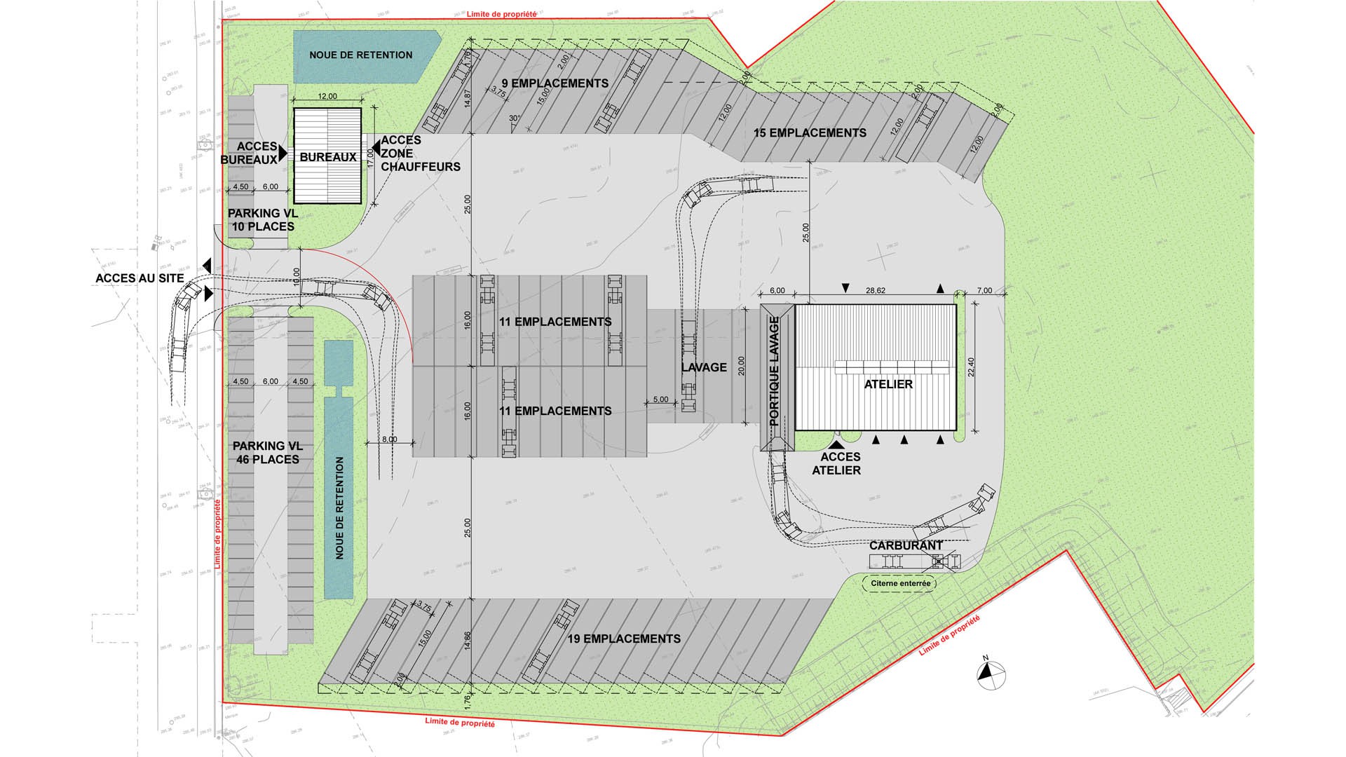
Nous avons l'expérience des parkings de grande capacité et des conditions qui garantissent un fonctionnement simple et sûr, pour tous les usagers.

Nous connaissons les espaces nécessaires aux divers véhicules lourds pour manoeuvrer en sécurité.